Центр промышленного субконтрактинга
+7 (831) 295-50-60
cps52@mail.ru
www.subcontractcentre.ru

Услуги проектирования

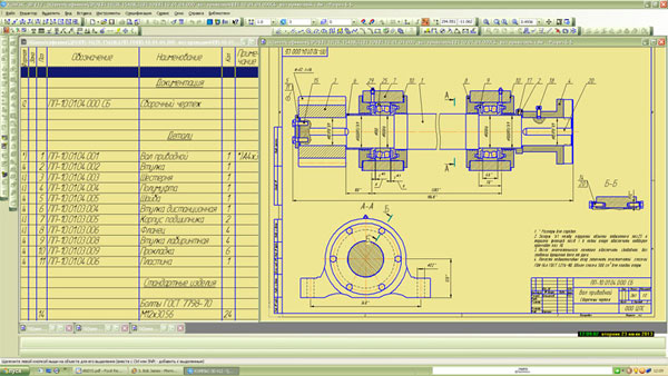
Разработка конструкторской документации машиностроительного направления

Разработка КД для машиностроительных предприятий  и предприятий, выпускающих товары народного потребления  (оборудование, стенды, отдельные механизмы и т.д.).

Разработка полного пакета КД:    
- сборочные и монтажные чертежи, чертежи деталей;    
- эксплуатационная документация (руководство по эксплуатации, паспорт или формуляр, инструкция по монтажу и т.д.).

Разработка 3D- моделей.
Разработка КД и расчет всех видов механических передач:    
-зубчатых (всех видов, кроме гипоидных);    
-цепных (всех видов);    
-ременных (клиновых, поликлиновых и зубчатых);    
-фрикционных и т.д.

Разработка технических условий (ТУ).
Разработка ремонтной КД (эскизировка и вычерчивание).
Разработка КД для доработки и модернизации машин и механизмов.
Переработка старых чертежей и их оцифровка.

Стадии разработки КД:
-разработка, вместе с заказчиком, технического задания и его утверждения;
-разработка комплекта КД в объеме подписанного договора.

Субконтрактинг. Конструкторская документация. Субконтрактинг. Конструкторская документация

Тел:  +7 (831) 295-50-60 ,  +7(939) 869-09-66 , Электронная почта: cps52@mail.ru


 
Проектирование систем электроуправления
 
Разработка  систем управления электрооборудованием  (СУЭО) дробильно-сортировочных (ДСК)  и аналогичных комплексов заказчика.
 
Создание общей СУЭО  для управления отдельными агрегатами и конвейерами   при наборе  комплекса оборудования заказчиком.
 
Разработка СУЭО для оборудования заказчика, в том числе станков, автоматических линий и комплексов металлорежущего оборудования (МРО), кузнечно-прессового оборудования (КПО), гидравлических прессов (ГП), литейного оборудования (ЛО). 
 
Выполнение СУЭО  с использованием  контроллеров (ПЛК)  и приводной техники: преобразователей частоты (ПЧ) и устройств  плавного пуска (УПП).
 
Выбор элементной базы  СУЭО  (типаж контроллеров, ПЧ, УПП и низковольтной аппаратуры)  выполняется  по желанию заказчика или на усмотрение разработчика  с учетом имеющегося опыта применения типажа и проверенных поставщиков комплектующих  электроизделий.
 
Минимальные сроки разработки.
 
Выдача рекомендаций по подбору  изготовителя узлов  СУЭО  и исполнителя пуско-наладки СУЭО у заказчика.
Авторский надзор.
 
Сопровождение КД  по желанию заказчика. 

Тел:  +7 (831) 295-50-60 ,  +7(939) 869-09-66 , Электронная почта: cps52@mail.ru

Субконтрактинг. Шкаф управления. Субконтрактинг. Шкаф управления.